Due to the health concerns created by Coronavirus we are offering personal 1-1 online video walkthough tours where possible.




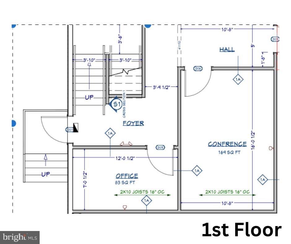
Customizable professional office suite coming soon at 1150 Chestnut Street in Lebanon. This 1,150 square foot space offers a rare opportunity for a professional tenant to have interior finishes completed to suit prior to occupancy. The suite spans two levels. The main floor will feature a large conference room and private office, while the upper level can be configured to meet the incoming tenant’s operational needs. The owner will work with the tenant to select flooring and paint colors and confirm outlet placement before completion, allowing the finished space to reflect your business style and workflow. The suite will have its own private entrance directly off the parking lot. The entrance and permitted exterior 6' x 10' signage will face 12th Street, a well-traveled connector roadway between Cumberland Street and Walnut Street (Route 422), providing strong daily visibility with approximately 10,000 vehicles passing per day. Ample on-site parking is available. The property also provides shared ADA accessibility and shared restroom facilities. 1150 Chestnut Street is an established professional building currently home to multiple attorneys’ offices, a flooring business, and a café, creating a stable and professional business environment. Monthly rent is $2,500 and includes utilities and snow removal. Tenant is responsible for phone, internet, and insurance. Following an executed lease agreement, the owner requires approximately six weeks to complete construction. Ideal for attorneys, accountants, financial advisors, consultants, therapists, or other professional service users seeking a polished and customizable office setting with strong signage exposure and convenient access across the city.
| 21 hours ago | Listing updated with changes from the MLS® | |
| 21 hours ago | Listing first seen on site |
Please enter your username or email address. You will receive a link to create a new password via email.
Did you know? You can invite friends and family to your search. They can join your search, rate and discuss listings with you.